Dostępne

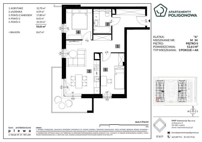
Mieszkanie 34

584 349 zł
10 900 zł / m2
Pokaż historię ceny

Liczba pokoi

3

Piętro

Piętro 2

Powierzchnia

53.61 m2

Wystawa okna:
  • Południe
  • Zachód

Balkon

8.67 m2

Apartamenty Poligonowa

Ikona komfortu

Zróżnicowany metraż

Ikona komfortu

Kameralny budynek

Ikona komfortu

Komfort i wygoda

Ikona komfortu

Niepowtarzalny design

Galeria inwestycji

Zapytaj O mieszkanie

Kontakt z Nami