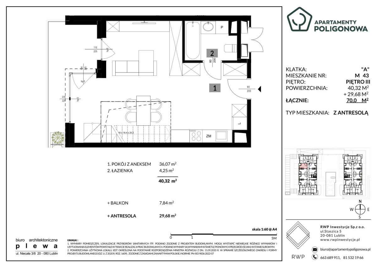
Mieszkanie 43
Liczba pokoi
2
Piętro
Piętro 3
Powierzchnia
70.00 m2
- Zachód
Taras
58.67 m2
Powody, dla których warto kupić mieszkanie dwupoziomowe
Klimat domu jednorodzinnego
Mieszkania z antresolą są świetną alternatywą dla domu w mieście. Na nasze dwupoziomowe apartamenty łączą w sobie klimat domu jednorodzinnego z wygodą standardowego mieszkania. Ponad to ich użytkownicy mogą cieszyć się poczuciem przestrzeni, jakie nie jest osiągalne w jednopoziomowym mieszkaniu.
 
                            Dwie oddzielne strefy – część mieszkalna i biurowa
Przyszli właściciele dostają do dyspozycji dwie oddzielne przestrzenie bez skosów – do wykorzystania jako powierzchnie mieszkalne lub do pracy. Antresolę można bez trudu zaaranżować w taki sposób, by powstała tu np. pracownia.
 
                            
                                        Niepowtarzalny design
i powiew luksusu
                                    
Tego typu mieszkania to nie tylko moda, lecz także zdecydowanie inne doświadczenie przestrzeni, która staje się inspirująca, niestandardowa, a jednocześnie pozwala na wiele niepowtarzalnych możliwości aranżacji.
 
                            Zapytaj O mieszkanie
 
 
                                    