Zróżnicowany metraż
                                Sprzedane
                            
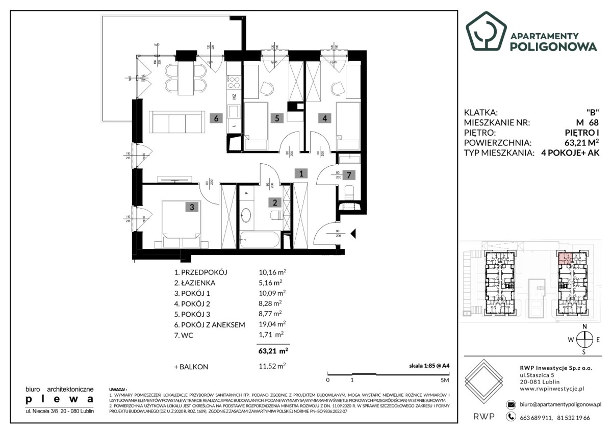
                                                        Mieszkanie 68
Liczba pokoi
4
Piętro
Piętro 1
Powierzchnia
63.21 m2
Wystawa okna:
                                    - Północ
- Zachód
Balkon
11.52 m2
Apartamenty Poligonowa
Kameralny budynek
Komfort i wygoda
Niepowtarzalny design
Zapytaj O mieszkanie
 
 
                                     
                         
                                 
                                 
                                