Sprzedane

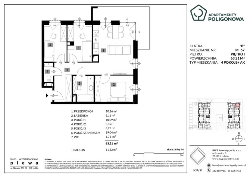
Mieszkanie 67

Liczba pokoi

4

Piętro

Piętro 1

Powierzchnia

63.21 m2

Wystawa okna:
  • Północ
  • Wschód

Balkon

11.52 m2

Apartamenty Poligonowa

Ikona komfortu

Zróżnicowany metraż

Ikona komfortu

Kameralny budynek

Ikona komfortu

Komfort i wygoda

Ikona komfortu

Niepowtarzalny design

Galeria inwestycji

Zapytaj O mieszkanie

ul. Wędrowna 1/87,
20-819 Lublin

Kontakt z Nami